0756- 2299930

咨询(周一至周日 9:30-18:30)

欢迎来到墨兔装饰设计官网

首页 >> 装修案例 >>现代简约 >> 笔架山公馆-极简风格-150m2
详细内容

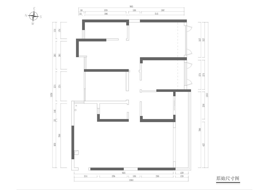
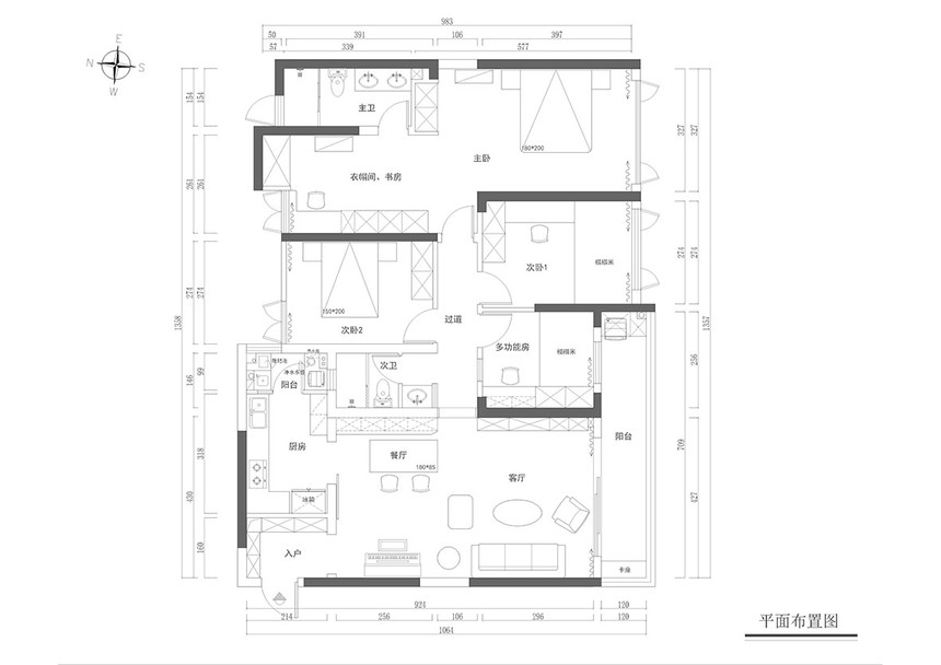
笔架山公馆-极简风格-150m2

现代极简风格现在也是越来越流行,因为这种风格很适合现代人。简约风格的特色是将设计的元素、色彩、照明、原材料简化到最少的程度,但对色彩、材料的质感要求很高。因此,简约的空间设计通常非常含蓄,往往能达到以少胜多、以简胜繁的效果。现代极简风格让我们的生活更加的干净明了。










咨询热线:0756-2299930
售后维修:0756-2299930
邮箱:motusheji@163.com
地址:珠海市三台石路太和广场后街C17号

关于我们

装修知识

服务支持

微信公众号

  • 电话直呼

    • 0756-2299930
    • 高级设计师 :
    • 设计主任 :
    • 设计总监 :
  • 一起装小程序

seo seo